info
• Rotterdam - oplevering 2025 - project Studio Kees
• 110 m2 bakkerij en bakkerswinkel
• fotografie © Wouter van der Sar
bakkerij De Broodhandel
In het iconische Groot Handelsgebouw vestigt zich een nieuwe buurtbakker, genaamd De Broodhandel. De bakkerij is gespecialiseerd in desembroden en biedt daarnaast een gevarieerd assortiment van zoete en hartige lekkernijen. Tevens wordt er een selectie van mooie streekproducten verkocht. Ooit ontworpen als een doorlopend winkelfront, opent de unit zich naar het busstation en de voorzijde van het Centraal Station.
“Alleen een pakhuis is het zeker niet geworden, want de showrooms rondom en langs de verbindingsgangen in het gebouw brengen de noodzakelijke kleur en fleur”.
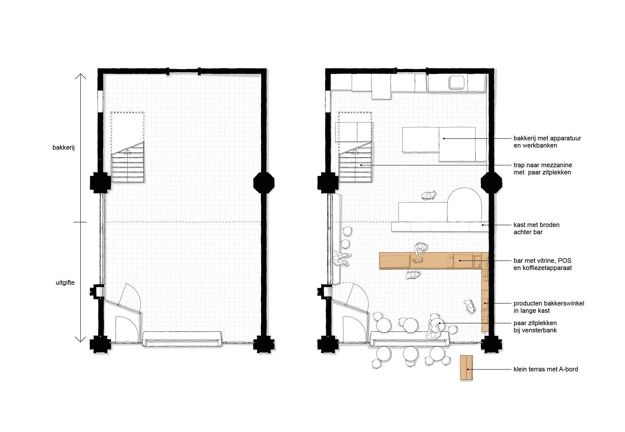
De beperkte ruimte en het bescheiden budget vormden een leuke uitdaging voor de beginnende ondernemer. De unit is in tweeën verdeeld; de uitgifte bevindt zich bij de entree in het dubbelhoge gedeelte, de bakkerij bevindt zich achter de uitgifte en gedeeltelijk op de mezzanine.
De karakteristieke zwart-witte tegelvloer werd behouden en geeft de ruimte direct al een bakkersuitstraling. De houten bar en kast voor streekproducten geven de ruimte een kenmerkende uitstraling en zorgen voor één groot warm gebaar dat contrasteert met de verder rustig gehouden unit. Achter de bar hangen in de bakkerskarren het menu en liggen de versgebakken broden.
De bestaande vensterbank dient als zitplek, aangevuld met losse tafels en krukjes. Aan de dubbelhoge pui naast de bar onstaat door het plaatsen van eenzelfde maatwerk vensterbank ook een natuurlijke zitplek. Alle toevoegingen aan de ruimte zijn simpel en neutraal gehouden om de presentatie van alle mooie en verse producten te versterken.
Bij mooi weer wordt buiten een klein terras ingericht met (venster)bank, tafels en stoelen, aangevuld met een A-bord voor extra zichtbaarheid.
verantwoordelijk voor
ontwerp en uitwerking concept interieur - ontwerp en uitwerking vast meubilair - contact opdrachtgever, meubelmakers, aannemer - begeleiding fotoshoot
